Om föreningen

Hildedal utgör det triangelformade området mellan Wieselgrensgatan och Tuvevägen med Hildedals herrgård i norra spetsen. Området rymmer både flerfamiljshus och småhus.  Mitt i området finns en park och i södra delen ligger en lekplats.  I Hildedal finns även en kommunal förskola.

Hildedal är beläget drygt 10 minuter med buss från Göteborgs innerstad och med bil når man Brunnsbomotet (mot E6) på ett par minuter. Backaplan respektive Wieselgrensplatsen ligger endast en kilometer bort.

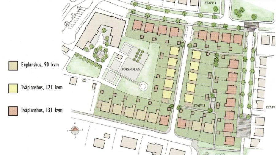
Husen som tillhör Bfr Rödlöken byggdes 2007/2008 av JM.  I föreningen ingår 7 st. enplanshus på 90 kvm, 10 st. tvåplanshus på 121 kvm och 17 st. tvåplanshus på 131 kvm på adresserna Solslättsvägen, Rödlöksvägen, Gulmårevägen och Taklöksvägen.  Varje tomt rymmer ett förråd samt en carport och plats för ytterligare en bil.

All fasad i föreningen är i trä. Uppvärmning sker med frånluftsvärmepump. Alla hus har golvvärme i nedervåningen och, i förekommande fall, radiatorer på övervåningen. Föreningen förvaltas av Nordic Life. Försörjning med bredband, tv och telefoni sker via fiberanslutning i ITUX stadsnät och vi har ComHem som leverantör av bredbandstjänster.